




电动提升门技术参数:
君格工程安装提升门是用于工业厂房里面的一种工业门,与其对应的还有工业推拉门和抗风卷帘门等,提升门由于密封性能,安全性能比较高,常用于厂房大门。
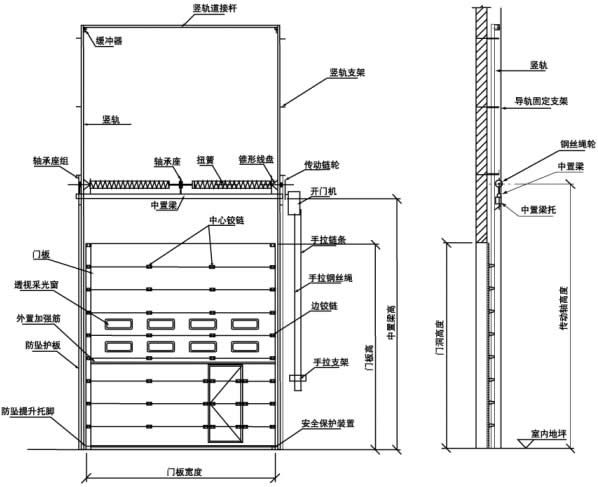
门板
提升门门板采用0.28mm-0.476厚度以上彩钢板,内填充40mm/50mm/75mm/100mm厚度聚氨酯,门板具有隔热、隔音、保温等优点,还可以添加阻燃剂。也可以采用钢材做骨架,填充苯板或岩棉保温,外面覆盖钢板制成,表面防腐防锈处理,大型提升门厚度不小于100mm。
电机
电机:工业门专用电机,供电220V-380V,功率375W~550W,配手动离合器,停电或紧急情况下可手动操作。提升速度为10cm/s~25cm/s。
控制方式:采用无线电遥控操作或控制箱按钮操作,可使门体精确定位;也可采用光电或地磁控制开启关闭
五金配件
五金配件(导轨及五金件):采用2.5 mm厚热镀锌钢板加工成型并经喷塑、高温烘烤等工艺精心制作,增加了防腐性、耐用性和美观性。导轨安装中两边衬有付板,增加强度和美观度。
安全装置
防坠落装置
安全气囊
防钢丝绳断裂装置
扭簧断裂安全装置
红外感应装置
1、门板,门板总厚度为40mm±1mm,双彩钢板,单层钢板0.4mm厚度,涂层处理自上向下为聚脂涂层、底漆、钝化层、镀锌层,木纹压花,正反面条形压筋加强门板强度。导热系数小于0.033W/m.k。确保十年不退色,不生锈。中间聚氨脂高压发泡,发泡密度为50kg/m?,导热系数小于0.033W/m.k,A级保温。在安装铰链位置设有连续钢带,以保证铰链牢固安装。在长5m以上的门板,门板反面增设抗风加强筋或内置加强筋。(门板为白色)
2、五金配件:
门板连接铰链为热镀锌冷轧钢板冲压制作,材料厚度δ=2.5mm,镀锌厚度大于280?m。导轨为δ=2.0mm热镀锌钢板辊压制作的2英寸工业门专用导轨,以确保导轮在导轨内平稳运行;轨道护板为δ=2mm热镀锌钢板辊压制作,护板上设有门侧密封橡胶的插槽及导轨连接的安装孔;导轮采用工业门专用导轮,内含滚轮轴承、运行平稳、无噪音。
其余五金配件均采用热镀锌钢板冲压制作,尺寸准确,互换性好。
3、平衡系统:
提升门采用扭簧平衡,扭簧采用82B优质弹簧钢材制造,是由专业工程师根据门重负荷计算而设计的技术参数,再由专业生产厂家制作平衡扭簧,这样使平衡达到最佳状态。确保使用寿命超过100000个循环周期。表面发黑防锈处理。
提升钢丝绳轮,标准提升门采用平轮,轴杆采用实心异型轴。
提升钢丝绳安全系数大于门重的5倍。
上一篇:山东,济南不锈钢伸缩门,厂区伸缩门,自动伸缩,遥控伸缩门
下一篇:济南大型快速卷帘门安装15662739858济南大型工业提升门安装
推荐资讯
RECOMMEND INFORMATION联系方式
CONTACT INFORMATION15662739858
604291616@qq.com
山东济南市天桥区北园街道石桥72号
LINK
友情链接